Address
19350 Livernois
| Price | $1,500,000 |
| Property Type | Restaurant/Bar |
| Building Size | 4,900 sq ft |
| Lot Size | 0.14 acres |
| Seating | 130 |
| Parking | DDA. Public street and lot parking readily available |
| MLCC | Class C |
| Availability | For Sale |
| Traffic Counts | 35,394 cars per day |
Description
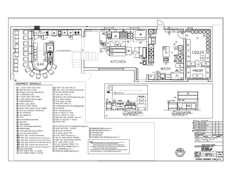
Absolutely Ready To Go, fully equipped restaurant and banquet space located along the entertainment district known as the “Avenue of Fashion”. The bar and kitchen were designed and installed with all high end equipment capable of putting out any menu developed for the property. The vaulted ceilings in the dining room make it seem much larger than its square footage. The structure was built in 1935 and completely renovated in 2021. Renovation included a new roof, windows and all new mechanicals. A gas fireplace and new wood floors were installed. The structure includes first floor dining and kitchen space, a second floor banquet or additional dining, a basement and a second floor office space. There is a current Certificate of Occupancy in place that is good thru July, 2027. Plans are in place for a large outdoor patio (see the attached plan). The space just inside the front window is perfect for a Morning Day Part Coffee Bar. The Barista Station plumbing is already in place. Our research indicated that a coffee bar in the morning would be well received.
Livernois is home to restaurants and bars including the world famous Bakers Keyboard Lounge which is known to be first Jazz club in the world. The Avenue of Fashion is also known for the boutique clothing stores and art galleries that line Livernois. The adjacent street begins the Sherwood Forest Neighborhoods. Sherwood Forest is a historic Detroit neighborhood known for its English-inspired architecture, winding streets, and large, wooded lots, established in the 1920s on farmland purchased in the 19th century. The neighborhood was listed as a local historic district in 2002.














